2022年春节前夕,广东白云学院建筑工程学院组织广东省农村科技特派员项目组成员赴云浮市郁南县建城镇开展相关工作,本次赴云浮郁南的团队成员主要有:建筑工程学院贺恋高级工程师、方玲副教授、创新创业学院姚雪梅创新创业导师等3人。此行,云浮市郁南县建城镇政府给予了高度重视,副镇长李景念、镇人大代表傅沛龙、驻镇帮扶队队长邓永闯、队员王耀辉、农业农村办负责人吴鸿槟全程陪同项目组进行工作座谈、会议讨论、实地调研等。

农村科技特派员与镇领导、驻镇帮扶队等合影
此次驻镇主要工作内容包括:1.建城镇地心村格桑花海规划设计工作总结交流;2. “天马山甜桃”和“车滘栗子”农产品标志及包装设计汇报;3. 建城镇车滘村系列农产品实地调研;4. 郁南建城镇系列农产品加工食品及网络销售产品调研;5. 三水团委“青春协作·聚能建城”对口协作郁南县建城镇工作座谈会;6. 建城镇部分村代表、村干部调研及帮扶需求座谈会;7. 建城镇天马山、红色教育基地、中心镇区及其他节点调研等。

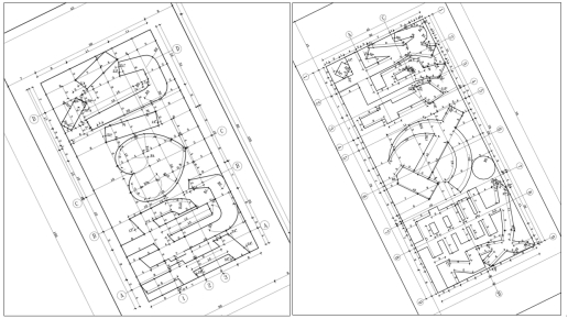
广东白云学院科技特派员团队景观规划设计图
团队负责人贺恋高级工程师对完成设计的“建城镇地心村格桑花海规划设计”工作进行了汇报总结,得到镇领导及驻镇帮扶队的高度肯定。镇领导及驻镇帮扶队对项目实际施工中出现的设计问题提出了意见,并会同镇政府、驻镇帮扶队、团队成员一行人来到已完成施工的格桑花海进行了参观调研,提出了修改意见。

镇政府、驻镇帮扶队、团队成员于格桑花海合影


航拍建城镇地心村格桑花海

初具规模的建城镇地心村格桑花海
目前,地心村格桑花海的前期建设已完成施工,初具规模,并于2月初陆续开花,美化了建城镇地心村的乡村景观,五环的设计标志呼应了正在举行的冬奥运动会,“格桑花开满园春,风柔夹绿铺粉妆”,很好地贯彻了“绿水青山就是金山银山”生态乡村振兴理念。地心村格桑花海项目已登录“郁南融媒”视频号进行了报道。